본문영역
도입
1975년 프랑스의 철학자 미셀 푸코는 그의 저서 『감시와 처벌』 에서 근대 감옥을 설명하기 위해 제레미 벤담이 고안한 ‘판옵티콘(panopticon’)이라는 개념을 도입한다. 판옵티콘은 죄수를 효과적으로 감시할 목적으로 고안된 원형감옥으로 중앙의 원형공간에 높은 감시탑을 세우고, 중앙 감시탑 바깥의 원 둘레를 따라 죄수들의 방을 만들도록 설계되었다. 또 중앙의 감시탑은 늘 어둡게 하고, 죄수의 방은 밝게 해 중앙에서 감시하는 감시자의 시선이 어디로 향하는지를 죄수들이 알 수 없도록 되어 있다. 이렇게 되면 죄수들은 자신들이 늘 감시받고 있다는 느낌을 가지게 되고, 결국은 죄수들이 규율과 감시를 내면화해서 스스로를 감시하게 된다는 것이다.
이러한 근대감옥의 일망감시(一望監視) 구조는 일제가 한국에 감옥을 만들고 감옥에 수감된 한국인을 친일적으로 전향시키기 위해서도 사용되었다. 1910년 강제병합 직후 21개소였던 감옥의 수는 1920년 이후 평균 30개소로 늘어났다. 이들 감옥 중 규모 면에서나 상징적인 면에서나 가장 의미가 있던 감옥이 바로 서울 외곽 의주로변 독립문 주변에 위치한 서대문형무소이다.
서대문형무소는 1908년 10월 21일 한국 최초의 근대식 감옥으로 준공되었다. 처음에는 480평 규모에 500여 명을 수감할 수 있도록 지어졌으나, 이후 여러 차례 증축되었다. 서대문형무소는 중앙간수소를 중심으로 옥사를 부채꼴 모양으로 배치하여 간수가 한 곳에서 모든 곳을 감시, 통제할 수 있도록 설계되었다. 외벽 담장에는 수감자들의 탈주를 막고 동태를 감시하기 위해 10m 높이의 망루를 설치하고 감방 벽면에는 감시창을 뚫어 수감자들의 일거수일투족을 감시하였다.
서대문 형무소에서는 1945년 8월 15일 광복을 맞기까지 수많은 애국지사들이 처형 또는 투옥되어 고초를 겪었다. 그리고 광복 이후에도 서울형무소, 교도소, 구치소 등으로 역할을 계속하였다. 1987년 구치소가 경기도 의왕시로 옮겨간 뒤 서대문독립공원으로 변신하였다.
역사적 배경
| 현재 주소 | |
|---|---|
| 현재 상태 |
서대문형무소는 대한제국 말기, 일제에 의해 1908년 10월 21일 ‘경성감옥’으로 문을 열었다. 한국 최초의 근대식 감옥으로 이것이 만들어진 시기는 일본이 근대화된 무력을 앞세워 1905년 을사늑약과 1907년 정미조약을 강압하여 식민지 기반을 구축하고 형식적인 병합만을 남겨둔 시기였다. 전국 곳곳에서 일제의 침략을 규탄하며 봉기한 의병들이 활발하게 활동하고 있었고, 일제는 이들에 대해 강압적인 진압, 토벌을 하던 시기였다. 즉 서대문형무소의 설립목적은 한국민의 독립운동을 억압하고 처벌하기 위함이었다.
일제는 항일세력이 급증하면서 늘어나는 수감인원을 적절히 수용, 관리하기 위해 1907년 12월 ‘감옥제도’를 제정하고 1908년 10월 경성감옥을 개소하였다. 개소 당시 수용면적이 약 1,600㎡로 전국 최대의 근대식 감옥이었다. 감옥소장을 포함하여 간수 대부분은 일본인이 임명되어 운영을 주도하였다. 또한 경성감옥 설치와 동시에 전국 8개 지역에 본감옥 설치를 추진하였다. 감옥은 서울, 평양, 대구와 공주, 함흥, 해주, 진주, 광주 등 사법기구인 공소원과 지방재판소가 있는 주요 도시에 설치되었다. 이를 통해 일제는 식민지 한국 전역을 하나의 감옥으로 만들고자 하였다.
감옥 설치를 전후한 시기에 ‘남한대토벌작전’ 등 항일세력에 대한 대대적인 제거정책이 있었고, 무력으로 일제에 저항하던 의병들이 대거 수감되었다. 허위, 이강년, 이인영 등 유명한 의병장들이 경성감옥에 수감되어 종신형을 받거나 사형 당하였고, 경성감옥의 수감인원도 크게 늘어나 감옥이 개소한 1908년 10월에 835명에 불과하던 것이 2년 뒤인 1910년 8월에는 2,536명으로 증가하였다. 이에 일제는 서울 마포 공덕동에 또 하나의 감옥을 설치하여 늘어난 인원을 수용하고자 하였다. 일제는 마포 공덕동에 신축한 감옥을 ‘경성감옥’이라 칭하고, 서대문에 있던 기존의 경성감옥을 ‘서대문 감옥’으로 변경하였다.
1919년 3·1운동 시기에 독립선언이 발표되고 전국에서 일어난 만세시위운동으로 수감자가 급격히 증가하자, 일제는 서대문감옥의 옥사를 대대적으로 신축하여 수용인원 3,000여 명 규모의 대규모 감옥으로 운용하였다. 1923년 감옥제도를 형무제도로 바꾸면서 명칭을 서대문형무소로 변경하였다. 개소당시 1,600㎡였던 서대문형무소는 증축과 개축을 거듭하면서 1930년대에는 51,200㎡로 규모가 약 30여 배 이상 확대되었다. 일제에 맞선 치열한 독립운동으로 소위 ‘사상범’의 급증하였기 때문이었다.
서대문형무소는 중앙간수소를 중심으로 옥사를 부채꼴 모양으로 배치하여 간수가 한 곳에서 모든 곳을 감시 통제할 수 있도록 설계되었다. 외벽 담장에는 수감자들의 탈주를 막고 동태를 감시하기 위해 10m 높이의 망루를 설치하고 감방 벽면에는 감시창을 뚫어 수감자들의 일거수일투족을 감시하였다. 또한 일본인 간수들은 총칼을 소지한 채 수감자에게 무차별적 구타를 자행하였다. 지하고문실에서는 모진 고문이 행해졌으며, 집합교회와 개별교회를 실시하여 수감된 한국인들을 친일적으로 전향시키고자 하였다.
또한 서대문 형무소에서는 1923년 공장 건물을 지어 수감자들의 노동력을 착취하였다. 여기에서 만들어진 물품은 형무소, 군부대, 관공서 등의 관용물품으로 조달되었다. 특히 제2차 세계대전 말기에는 군수용품을 생산하느라 최대 하루 14시간의 노동을 강요하였다.
서대문형무소는 설립 당시부터 일본인에 의해 장악되어 한국 식민지화에 대항하는 저항세력을 제거함을 목적으로 하고 있었다. 이러한 운영목적은 식민지시기 내내 지속되어 많은 독립운동가들이 수감되어 고초를 겪었다.
읽기
읽기자료 1
서대문형무소가 위치하고 있는 서울시 서대문구 현저동 101번지는 조선 후기 북쪽 의주로 가는 큰 길, 즉 의주로가 위치한 곳으로, 사대문 안과 밖을 이어주는 주요 교통로 중 하나였다. 특히나 이 길을 따라 중국과의 왕래가 있었기에 주변에 중국의 사신을 맞아들였던 영은문과 모화관이 있었는데, 1897년 이후에는 독립문과 독립관이 새롭게 자리하였다.
독립문은 갑오개혁 이후 자주독립의 의지를 다짐하기 위해 세운 기념물이다. 즉 민족의 자주와 독립을 위해 어떠한 나라의 간섭도 허용하지 않겠다는 의지로 중국의 사신을 맞이하던 영은문을 헐어버리고 그 자리에 독립문을 세운 것이다. 독립문은 서재필이 주도한 독립협회의 주도 아래 고종의 동의와 국민들의 폭넓은 지지를 얻어 만들어졌다. 전체적인 모양은 프랑스의 개선문을 본떠 만들되 조선왕조의 상징인 오얏꽃과 태극기 무늬를 새겨 넣어 조선의 정체성과 독립의지를 분명히 표시하였다.
따라서 일제가 이곳에 감옥을 설치한 저의는 독립문과 독립관으로 대표되는 조선의 자주독립의 의지를 짓밟고, 일본이 우월한 힘을 가지고 있음을 나타내기 위함이었다고 생각할 수 있다.
또한 서대문형무소를 사람들이 많이 왕래하는 대로변에 지어놓은 이유도 조선인에게 식민지배의 공포를 각인시키기 위한 측면이 중요하게 작용하였을 것이다. 이 곳 의주로는 일제강점기 경성과 외부를 연결하는 6개의 도로 중 한국인의 통행이 유독 많은 도로였다. 한국인들이 많이 왕래하는 대로변에 거대한 감옥을 지어놓음으로써 이곳을 오가는 사람들에게 보이지 않는 담장 안쪽의 공포가 언제라도 자신의 일의 될 수 있음을 끊임없이 각인시키려는 의도였다. 일제는 일본에 대한 두려움, 공포를 서대문형무소라는 공간을 통해 형상화하여 주입시킴으로써 한국인의 저항의지를 꺾어 놓고자 하였다.
- 질문1 독립협회가 1897년 의주로에 독립문과 독립관을 세운 이유는 무엇인가요?
- 질문2 독립문에 오얏꽃과 태극기 무늬를 새긴 이유는 무엇인가요?
- 질문3 일제가 서대문형무소를 의주로에 세운 이유를 두 가지 써봅시다.
읽기자료 2
① 105인 사건
일제는 한국을 강제병합한 이후 폭압적 무단통치를 실행하면서 민족운동을 탄압하였다. 1910년 11월에는 안중근의 사촌동생인 안명근이 군자금을 모금 하다가 체포되자 이것을 기회로 서북지방 애국지사 160여 명을 체포하였다(안악사건). 또 1911년에도 데라우치 총독 암살사건의 배후로 신민회를 지목하여 탄압하였다. 신민회는 1907년 초 안창호·이승훈 등 계몽운동가들이 비밀리에 조직한 항일단체로 독립사상의 고취, 국민역량의 배양, 청소년 교육, 상공업 진흥 등을 통한 실력양성 등을 목표로 활동하고 있었다. 일제는 윤치호·양기탁·이승훈 등 약 600명의 신민회 인사를 검거하고 이 중 105명의 애국지사를 서대문형무소에 수감시켰다.
서대문형무소에 수감된 독립운동가 중에는 의열투쟁을 통해 일제의 식민지배에 저항한 인물도 많다. 의열투쟁은 개인이 나라와 민족은 위해 목숨을 바쳐 일본 제국주의 요인이나 친일파를 처단하고 식민지 통치기관을 파괴했던 독립운동 방략 중 하나였다. 대표적인 인물로 1910년 매국노 이완용을 처단한 이재명 의사나, 남대문역에서 조선총독 사이토 마코토를 향해 폭탄의거를 단행한 강우규 의사 등이 있으며 이들은 서대문형무소에 수감되어 순국하였다. ③ 3·1운동
1919년 3월 1일 한국민의 거족적 만세운동인 3·1운동이 일어났다. 민족대표 33인이 태화관에서 독립선언을 발표한 후 수많은 민중들이 독립만세를 부르며 거리에서 시위를 하였고, 이러한 움직임은 전국으로, 해외로 퍼져나가 3개월 가까이 지속되었다. 일제는 만세시위를 무력으로 진압하였고, 전국 각지에서 많은 인사들을 체포하였다. 독립선언을 발표한 민족대표 33인이 서대문형무소에 수감되었고, 전국에서 만세시위를 벌이던 수많은 인사들이 서대문형무소로 끌려와 고초를 당했다. 이 시기 서대문형무소에 수감된 인원만도 3천여 명을 헤아리며, 일제의 모진 고문에 양한묵·손병희 등 독립지사들이 옥사 또는 순국하였다. ④ 대한민국임시정부
3·1운동 이후 중국 상하이에 대한민국임시정부가 수립되었다. 임시정부는 독립운동의 최고 지휘부가 되어 국내에 독립운동 연락망을 구축하고 외교·교육·문화 등 다방면에서 독립운동을 전개하였다. 또한 1940년에는 광복군을 창설하여 대일전쟁을 수행하기도 하였다. 이 과정에서 많은 임시정부 요인들이 체포되어 서대문형무소에 수감되었다. 대표적인 인물로는 김구·김동삼·안창호·양기탁·여운형 등이 있다. ⑤ 6·10만세운동
6·10만세운동은 1926년 6월 10일, 각계각층의 다양한 독립운동 세력이 연합하여 전개한 만세시위 운동이다. 융희황제(순종)의 인산일에 약 30여 만명의 군중이 운집한 가운데 학생들이 중심이 되어 일제히 독립만세를 외치며 시위를 전개하였고, 지방 곳곳에서도 만세시위가 이어졌다. 이 시위로 서울에서 212명이 체포되었고, 권오설·권오상·이선호·유면희를 비롯한 대부분의 관련자들이 서대문형무소에 수감되었다. 그 가운데 권오설 열사는 1930년 4월 옥중 순국하였다. ⑥ 신간회
6·10만세운동의 영향으로 민족주의자들과 사회주의자들은 ‘민족유일당 민족협동전선을 이루어 신간회를 조직하였다. 1927년 서울에서 조직된 신간회는 1928년 말까지 국내외 총 148개 지부 39,000여 명의 회원을 확보하여 사회운동을 전개하였다.
1929년 11월 광주학생운동이 일어나자 신간회는 이를 전국적인 민중운동으로 확대하기 위해 12월에 민중대회를 준비하다 일제의 탄압으로 주요 지도부 44명이 체포되었다. 이 가운데 허헌·조병옥·홍명희·이관용·이원혁·김무삼이 실형을 받아 서대문형무소에서 옥고를 치렀다. ⑦ 조선어학회 사건
조선어학회는 일제의 한국어 사용 금지 등 민족말살정책에 저항하여 사전 편찬 및 한글 보급을 통해 민족사상을 고취하였던 단체이다. 일제는 1942년 10월부터 1944년 2월까지 한글학자 33명을 검거하였다. 이 중 이극로·최현배·이희승·정인승·정태진 등이 서대문형무소에 수감되어 옥고를 치렀다.
- 질문1 서대문형무소에 수감되었던 독립운동가와 그와 관련된 사건을 정리하여 써 봅시다.
읽기자료 3
① 김광석, 「나의 옥창일기」
기상 나팔소리에 뛰어 일어나 단벌 이불을 개고 수건에 물을 짜서 몸을 훔친다. …(중략)… 홀딱 벗고 문 앞에 선다. 무명 수건 하나를 들고 문이 열리자 고개를 끄덕하고는 복도를 달려 층계를 내려와 큰문에 나서면 겨울 물에 풍덩 뛰어드는 듯 찬바람을 훅 느끼며 창창한 대한천(大寒川)에 뛰어든다.
정신없이 달리다가 문 가운데 놓인 허들을 훌쩍 뛰면서 입을 아~ 벌려야 한다. 뛰는 것은 항문에 감춘 것이 없다는 표시요, 아~ 하는 것은 입에 문 것도 없다는 증거이다. 감방과 공장 사이로 조그마한 것이라도 가지고 다니다간 벼락이 떨어진다.
② 심훈, 「옥중에서 어머니께 올리는 글월」
쇠고랑을 차고 용수는 썼을망정 난생 처음으로 자동차에다가 보호순사까지 앉히고 거들먹거리며 남산 밑에서 무악재 밑까지 내려 긁는 맛이란 바로 개선문으로 들어가는 듯 하였습니다.
어머니! 날이 몹시도 더워서 풀 한 포기 없는 감옥 마당에 뙤약볕이 내리쪼이고 주황빛의 벽돌담은 화로 속처럼 달고 방 속에는 똥통이 끓습니다. 밤이면 가뜩이나 다리도 뻗어보지 못하는데, 빈대·벼룩이 다투어 가며 진물을 살살 뜯습니다. 그래서 한 달 동안이나 쪼그리고 앉은 채 날밤을 새웠습니다. 그렇건만 대단히 이상한 일이지 않겠습니까? 생지옥 속에 있으면서 하나도 괴로워하는 사람이 없습니다. 누구의 눈초리에나 뉘우침과 슬픈 빛은 보이지 않고, 도리어 그 눈들은 샛별과 같이 빛나고 있습니다.
③ 김구,「백범일지」
많은 죄수가 앉아 있을 때엔 마치 콩나물 대가리 나오듯이 되었다가, 잘 때에는 한 사람은 머리를 동쪽 한 사람은 서쪽으로 해서 모로 눕는다. 그러고도 더 누울 자리가 없으면 나머지 사람들은 일어서고, 좌우에 한 사람씩 힘이 센 사람이 판자벽에 등을 붙이고 두 발로 먼저 누운 자의 가슴을 힘껏 민다. 그러면 누운 자들은 “아이구, 가슴뼈 부러진다.”라고 야단이다.
하지만 미는 쪽에서는 또 누울 자리가 생기니, 서 있던 자가 그 사이에 드러눕고 몇 명이든지 그 방에 있는 자가 다 누운 후에야 밀어주던 자까지 다 눕는다. 모말과 같이 네 귀퉁이를 물려 짜서 지은 방이 아니면 방이 파괴될 터였다. 힘써 밀 때는 사람의 뼈가 상하는 소리인지 벽판이 부러지는 것인지 우두둑 소리에 소름이 돋는다.
감옥소 덕에 얻은 병이 다섯 가지이다.
맨 처음 상해에서 잡힐 적에 운동장에서 격투하다가 귀를 몹시 얻어맞았는데 그때 고막이 상하여 한쪽 귀는 아주 병신이 되고 말았다. 그 다음에는 옥에서 주는 조밥을 먹다가 돌을 깨물어서 이 한 개가 그만 부스러지고 말았다. 웬일인지 잇몸 전체가 상하고 염증을 일으켜 퍽 괴로웠다. 옥에 갇힌 지 며칠 못가서 신경통이 격렬하게 일어났다. 그 통에 머리와 수염이 이렇게 하얗게 세어 버렸다. 코 아래 수염은 흰털이 많기는 하지만은 이전 모양으로 다시 길러 보려고 생각한다. 신경 관계인지 불면증도 대단하였다. 하루 3시간 이상을 자 본적이 없어 퍽이나 애를 썼다. 그리고 마지막으로 감옥 안에서는 누구나 다 앓게 되는 치질에 걸리어 퍽 고생하였다. ⑤ 지봉하,「옥중편지」
저는 얼마 전까지는 아주 건강한 몸으로 지냈으나 가을이 되면서부터는 어찌된 일인지 앉아서 괴로운 세월을 보내고 있습니다. 요전에 송금해 주신 돈 4원은 실수 없이 수령하였는데 동관 형님께서 2원을 더하여 6원이 왔습니다. 그 형의 일은 얼마나 감사한지.
아버지, 참으로 죄송하옵고 황송한 말씀이나 몸을 좀 보하여야겠습니다. 몸을 보하는 데는 돈이 좀 있어야 할 터인데, 약 10원 가량을 12월 초순께 부쳐서 20일 안으로 여기에 도착되도록 하여 주십시오. 돈이 더 있으면 얼마든지 좋겠지만 그것이야………
- 질문1 김광석의 「나의 옥창일기」에서 서대문형무소에서 죄수에게 달리다가 문 가운데 놓인 허들을 훌쩍 뛰면서 입을 아~ 벌리게 한 이유는 무엇인가요?
- 질문2 김구의「백범일지」에서 알 수 있는 서대문형무소의 열악한 상황을 써 봅시다.
- 질문3 여운형의「옥중 회고록」에서 여운형이 감옥에서 얻은 다섯 가지 병은 무엇인가요?
시각자료
시각자료 1
표는 서대문형무소가 개소한 1908년 이래 전국 감옥 수감자의 인원 변화를 나타낸 것이다.
- 질문1 수감자 숫자가 제시된 년도 중 수감자 인원이 가장 많은 증가를 보인 해를 순서대로 세 개 정도 찾아봅시다.
- 질문2 형무소 수감자가 가장 많은 증가를 보인 3개 년과 관련이 깊은 각각의 사건을 써 봅시다.
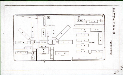
시각자료 2
그림은 1930년 현재 서대문형무소의 배치도이다.
- 질문1 좌측 건물은 건물 중심과 주변이 어떠한 방식으로 연결·배치되어 있는가요?
- 질문2 이와 같은 방식으로 건물을 배치한 이유는 무엇인가요?
시각자료 3
- 질문1 두 사진 속 인물의 가장 큰 차이점은 무엇인가요?
- 질문2 사진 속 인물의 모습이 달라진 이유는 무엇일까요?
모둠활동
모둠별로 일제에 맞서 독립운동을 하다 서대문형무소에 수감된 사람들 중 한 명을 택하여 그 사람의 배경, 독립운동을 위해 택한 방법, 당시 한국사회에 미친 영향 등을 포함한 약력을 작성해봅시다.
모둠별로 독립운동가·판사·검사·변호사 등의 역할을 정하여 모의 법정을 열어 봅시다.
서대문형무소에 갇힌 독립운동가의 입장에서 가족에게 보내는 편지를 작성하여 발표해 봅시다.
서대문형무소는 일제가 우리나라에 남긴 대표적인 건축물 중 하나로 1987년 11월 서울구치소가 경기도 의왕시로 이전하면서 철거되기 시작하였다. 그러나 이에 반대하여 ‘역사 교훈의 현장’으로 이곳을 보존하려는 노력들이 모여 1998년 11월 5일 서대문형무소역사관으로 재탄생하게 되었다. 모둠별로 자신들이 살고 있는 지역에서 서대문형무소처럼 일제강점기에 세워진 건물이 있는지 찾아보고 활용방법을 토론해 봅시다.

















